【
新築戸建
】
未公開!角地!間取り変更可!
| 最寄駅 | 所在地 | 面積 | 価格 | 間取り |
|---|---|---|---|---|
有楽町線「護国寺」駅 徒歩 13分 | 文京区目白台1丁目 | 土地/34.17㎡ 建物/55.37㎡ | 成約済み | 3 LDK |
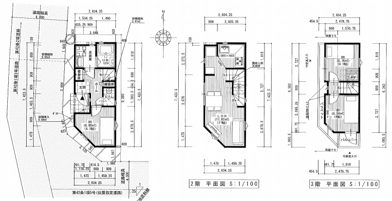
物件写真・間取り
物件概要
| 物件名 | 目白台の新築3LDKがこの価格 |
|---|
| 交通機関 | 有楽町線「護国寺」駅 徒歩 13分 R山手線「目白」駅 徒歩 13分 都電荒川線「早稲田・面影橋」駅 徒歩 7分 |
|---|
| 所在地 | 文京区目白台1丁目 |
|---|
| 間取り | 3 LDK |
|---|
| 土地権利 | 所有権 |
|---|
| 土地面積 | 34.17㎡ |
|---|
| 建物面積 | 55.37㎡ |
|---|
| 建物構造 | 木造 |
|---|
| 用途地域 | 第一種中高層住居専用地域 |
|---|
| 建ぺい率 | 60% |
|---|
| 容積率 | 160% |
|---|
| 接道 |
|
|---|
| 地目 | 宅地 |
|---|
| 販売戸数 | 1 |
|---|
| 情報登録日 | 2021年06月18日 |
|---|













