【
マンション
】
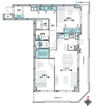
本郷小学区・南東角部屋・駅4分・約22㎡のL字バルコニー
| 最寄駅 | 所在地 | 面積 | 築年月 | 価格 | 間取り |
|---|---|---|---|---|---|
丸ノ内線「本郷三丁目」駅 徒歩 4分 | 文京区本郷2 | 専有面積/64.95㎡ | 1982年01月 | 成約済み | 2 LDK |
物件写真・間取り
物件概要
| 物件名 | 本郷のリノベ済みマンション |
|---|
| 交通機関 | 丸ノ内線「本郷三丁目」駅 徒歩 4分 丸ノ内線・中央線・総武線「御茶ノ水」駅 徒歩 8分 |
|---|
| 所在地 | 文京区本郷2 |
|---|
| 間取り | 2 LDK |
|---|
| 土地権利 | 所有権 |
|---|
| 専有面積 | 64.95㎡ |
|---|
| 建物構造 | RC |
|---|
| 階 / 階数 | 3/6 |
|---|
| 築年月 | 1982年01月 |
|---|
| 都市計画 | 市街化区域 |
|---|
| 用途地域 | 商業地域 |
|---|
| 地目 | 宅地 |
|---|
| 管理費 | 16,700円 |
|---|
| 修繕積立金 | 13,630円 |
|---|
| 引渡し | 即時 |
|---|












