投資用不動産

荻窪の1棟ビル

【 一棟 ビル 】
駅3分・ミラー仕様のモダンなオフィスビル

最寄駅所在地面積築年月価格

IR総武中央線・JR中央本線・丸ノ内線「荻窪」駅 徒歩 3分

杉並区荻窪5丁目

土地/589.46㎡

建物/1,998.88㎡

1991年05月 成約済み
満室時利回り満室時年収

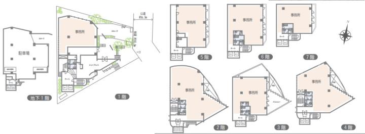
物件写真・間取り

物件概要

物件名

荻窪の1棟ビル

交通機関

IR総武中央線・JR中央本線・丸ノ内線「荻窪」駅 徒歩 3分

所在地

杉並区荻窪5丁目

価格

118,000万円

土地権利 所有権
土地面積

589.46㎡

建物面積

1,998.88㎡

建物構造 SRC
築年月1991年05月
都市計画 市街化区域
用途地域 近隣商業地域
建ぺい率

80%

容積率

300%

地目 宅地
現況 賃貸中
引渡し 即時

資料請求・お問い合わせ

物件名荻窪の1棟ビル
お問い合わせ内容
お名前
電話番号
メールアドレス
確認のため同じアドレスをご入力ください。
備考欄ご希望の連絡方法、見学希望日、希望条件、質問などがございましたら、ご記入ください
  • 文京区のご案内
  • 学区から探す
  • 不動産無料査定
  • 全国No.1によるFP相談
  • コンサル&物件調査
  • スタッフ紹介
  • ローンシミュレーション
  • 家具付き賃貸情報サイト
会社案内

文の京不動産株式会社

東京都文京区後楽1-1-12

TEL 03-6801-5944

FAX 03-6801-5994

営業時間 10:00~21:00
定休日 隔週火曜日、水曜日

宅建免許番号:東京都知事(2)101907号

文京区のことを「文の京(ふみのみやこ)」と言います。

文京区のことなら文の京不動産へご相談ください。

不動産は地元が一番です。

文の京不動産株式会社の「文の京」と文京区が推進する「文の京」とは関係がございません。
Copyright (C)2018文の京不動産株式会社 All Rights Reserved.