【
マンション
】
未公開・再開発でさらに人気の大井町駅から4分
ファミリーに人気の1Fの築浅3LDKです。
| 最寄駅 | 所在地 | 面積 | 築年月 | 価格 | 間取り |
|---|---|---|---|---|---|
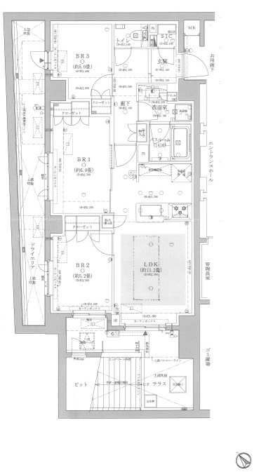
京浜東北線「大井町」駅 徒歩 4分 | 東京都品川区南品川5-10-34 | 専有面積/67.19㎡ | 2019年03月 | 成約済み | 3 LDK |
物件写真・間取り
物件概要
| 物件名 | オープンレジデンシア大井町ゼームス坂 |
|---|
| 交通機関 | 京浜東北線「大井町」駅 徒歩 4分 京急本線「青物横丁」駅 徒歩 6分 京急本線「鮫洲」駅 徒歩 9分 |
|---|
| 所在地 | 東京都品川区南品川5-10-34 |
|---|
| 間取り | 3 LDK |
|---|
| 専有面積 | 67.19㎡ |
|---|
| 建物構造 | RC |
|---|
| 階 / 階数 | 1/4 |
|---|
| 築年月 | 2019年03月 |
|---|
| 都市計画 | 市街化区域 |
|---|
| 用途地域 | 第一種住居地域 |
|---|
| 地目 | 宅地 |
|---|
| 管理費 | 18,220円 |
|---|
| 修繕積立金 | 15,100円 |
|---|




















