【
マンション
】
窪町小学区・新築・ペット可・WIC
| 最寄駅 | 所在地 | 面積 | 築年月 | 価格 | 間取り |
|---|---|---|---|---|---|
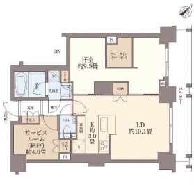
丸ノ内線「茗荷谷」駅 徒歩 6分 | 文京区小石川 | 専有面積/60.04㎡ | 2021年04月 | 成約済み | 1 SLDK |
物件写真・間取り
物件概要
| 物件名 | オープンレジデンシア小石川播磨坂 |
|---|
| 交通機関 | 丸ノ内線「茗荷谷」駅 徒歩 6分 |
|---|
| 所在地 | 文京区小石川 |
|---|
| 間取り | 1 SLDK |
|---|
| 専有面積 | 60.04㎡ |
|---|
| 建物構造 | RC |
|---|
| 階 / 階数 | 4/10 |
|---|
| 築年月 | 2021年04月 |
|---|
| 都市計画 | 市街化区域 |
|---|
| 管理費 | 16,530円 |
|---|
| 修繕積立金 | 5,400円 |
|---|
| 情報登録日 | 2021年10月17日 |
|---|













