世田谷区駒沢三丁目マンション
【
一棟
マンション
】
駅8分 ・ 駒沢大学至近 ・ オールレジデンス
| 最寄駅 | 所在地 | 面積 | 築年月 | 価格 |
|---|---|---|---|---|
東急田園都市線「駒沢大学」駅 徒歩 8分 | 世田谷区駒沢 | 土地/128.94㎡ 建物/184.56㎡ | 1984年03月 | 成約済み |
| 満室時利回り | 満室時年収 |
|---|
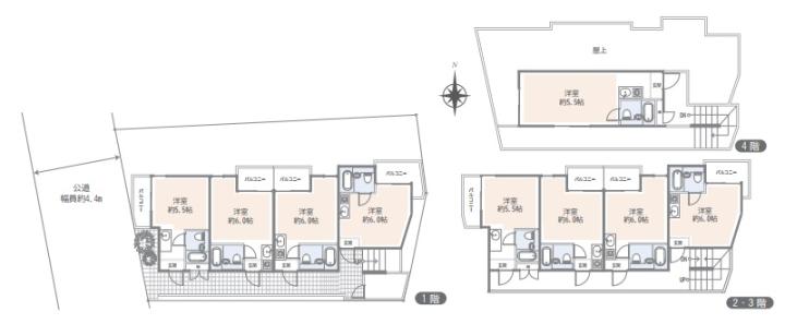
物件写真・間取り
物件概要
| 物件名 | 世田谷区駒沢三丁目マンション |
|---|
| 交通機関 | 東急田園都市線「駒沢大学」駅 徒歩 8分 |
|---|
| 所在地 | 世田谷区駒沢 |
|---|
| 価格 | 18,500万円 |
|---|
| 土地権利 | 所有権 |
|---|
| 土地面積 | 128.94㎡ |
|---|
| 建物面積 | 184.56㎡ |
|---|
| 建物構造 | RC |
|---|
| 築年月 | 1984年03月 |
|---|
| 都市計画 | 市街化区域 |
|---|
| 用途地域 | 第一種中高層住居専用地域 |
|---|
| 建ぺい率 | 80% |
|---|
| 容積率 | 200% |
|---|
| 地目 | 宅地 |
|---|
| 現況 | 賃貸中 |
|---|
| 引渡し | 即時 |
|---|













